• 當前位置: 首頁 > 新聞資訊 > 行業新聞 > 詳細內容

    裝配式建筑 |上海首個工業化裝配式學校實踐——星河灣中學

    廣東建筑工業化展     2017-11-17     1470

     ?

    星河灣中學作為上海市第一所采用預制裝配整體式混凝土結構體系建造的公共配套完全中學建筑示范項目,在裝配率、項目類型和規模上都是建設先例。

    學校位于上海市閔行區,整個地塊呈方形,北面緊鄰消防站規劃用地(近銀都路),在地塊東南角(都莊路與梅州路交叉口)有已建成的35KV/110KV市南供電站,無高壓線走廊。項目總用地面積43290㎡(約合64.90畝)。

    學校設有初中部24班和高中部24班,學生規模約為2040人,其中考慮住宿學生約950人,教師規模約為216人。規劃控制要求:容積率不大于1.0,建筑高度不超過60米,建筑退界、建筑密度和綠地率等指標按國家及上海市規定標準執行。主要包括教學辦公樓、多功能綜合樓、學生公寓樓、風雨長廊、地下車庫及相應的室外總體工程等在內的建筑單體及環境景觀。總建筑面積48520.43㎡,其中地下總建筑面積4635.1㎡,容積率1.0。

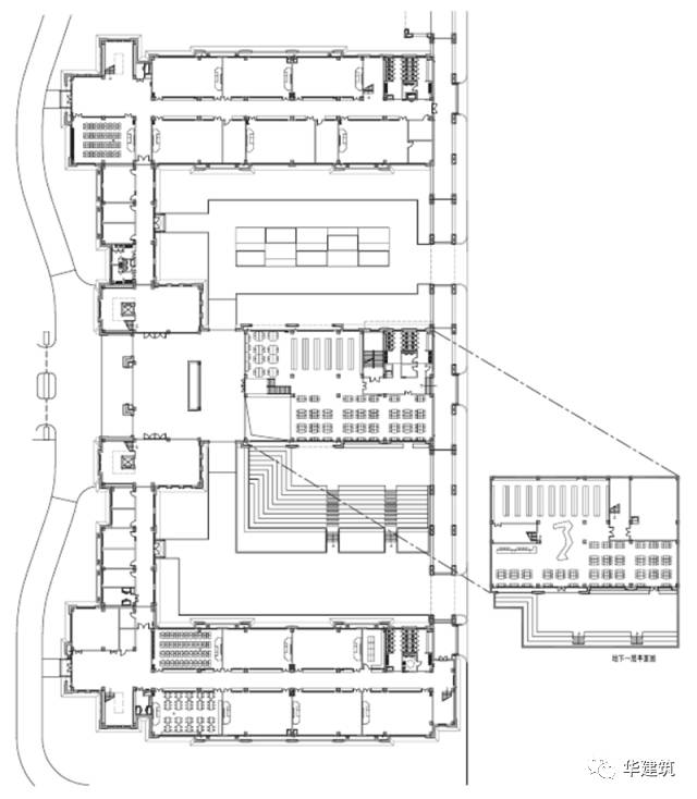
    △總平面圖

    —設計特色

    1、科學高效的校園規劃

    星河灣中學主要由教學辦公區、運動健身區、生活配套區三大功能區域組成,整體功能布局合理清晰、高效經濟。整個基地分為東西“動”和“靜”兩大功能分區。教學辦公區和生活配套區沿西側邊界布局,遠離東南角供電站輻射干擾;充分利用場地南向采光日照充足優勢布置教學辦公樓,教學區與辦公區緊密結合形成兩大共享庭院空間,底層架空實現庭院空間貫通,做到高中部與初中部功能既“分”又“合”。

    校園規劃應充分考慮到未來的發展,使規劃結構多樣、協調、富有彈性,適應未來變化,滿足可持續發展。教學辦公樓南側預留教學發展用地,較好地銜接了未來教學發展。

    教學辦公樓以北為學生公寓樓,將學生宿舍集約設為一棟高層公寓樓,節約占地,提高土地利用。多功能綜合樓布置在基地東北角,其中包括底層學生餐廳、教工餐廳、廚房、多功能教學用房(兼學生劇場)、健身活動及風雨操場等。地下車庫設置在多功能綜合樓地下一層;建筑單體之間通過貫穿南北的風雨長廊聯接。基地東南角為運動健身區,主要包含300米標準運動場、1個足球場、4個排球場、3個籃球場等,300米標準運動場沿基地東側邊界南北向布局,阻隔東側城市主干道噪音對教學干擾。

    △教學樓剖面圖

    △綜合樓剖面圖

    △綜合樓立面圖

    △綜合樓一層平面圖

    △教學樓一層平面圖

    2、多維互動的校園庭院空間

    教學辦公樓平面整體呈“E”字形布局,分為三棟南北向教學樓,其中1#樓為高中班教學樓,2#樓為公共教學樓,3#樓為初中班教學樓。行政辦公區和輔助用房采用單廊式沿東西向布局,與教學樓圍合形成兩個獨立的景觀庭院空間。平面上利用公共走廊把普通教學區、公共教學區和行政辦公區聯系起來。

    校園圖書館結合下沉知識廣場設在公共教學樓底層,以下沉知識廣場的公共開放空間為核心,通過底層架空的公共學習區串聯兩個院落空間,相互滲透與共享,加強了校園內部的整體結構,形成一個多維互動,融合的校園庭院空間。

    3、公共開放的共享學習空間

    在內部學習空間的構建中,各樓層均設有聚集、交流、分享的場所,特質的“開放學習空間”,這也是與傳統中小學校主要的不同之處。由于滿足學生需求的群組學習空間的引入,可以促進學生與學生、學生與教師之間的協作式學習,將學習和實踐互動聯合起來,提供學生可以獨立、自我充分思考、研究的機會,營造活力交往空間,激發學生的創造力。

    工業化設計

    項目預制概況

    學生宿舍樓:

    建筑布置: 地上10層,地下1層。首層及標準層高3.6米。

    結構體系: 裝配整體式框架結構,抗震等級一級。

    預制構件種類: 預制框架柱、疊合梁、 疊合樓板、預制樓梯及預制空調板。

    預制范圍: 2~10 層(其中柱:5~10層)

    預制率: 47.2%

     

    教學辦公樓:

    建筑布置:1#、3#樓為地上5層建筑,2#樓為地上4層建筑。首層層高為4.5米,2-5層為4.0米。

    結構體系: 裝配整體式框架結構,抗震等級二級。

    預制構件種類:預制框架柱、疊合梁、疊合樓板、預制樓梯。

    預制范圍: 1 層~4/5 層

    預制率: 45.1%。


    項目PC設計特點

    (1)高預制率公共建筑

    教學辦公樓預制率45.1%、學生宿舍樓47.2%。

    (2)標準化、模數化設計的學校建筑

    教學辦公樓、宿舍樓等使用功能明確,適合進行模數化設計。

    (3)抗震等級高、節點構造要求高

    抗震設防為重點設防類,節點與構造的抗震設計要求高;其中宿舍樓抗震等級為一級、教學辦公樓抗震設計等級二級。


    裝配式要求

    根據土地出讓合同,本地塊采用裝配式建筑面積100%,單體預制率不小于40%,因此本工程中學生公寓樓、教學辦公樓及多功能綜合樓皆采用裝配式結構。

     

    裝配式建筑模數化

    學生公寓樓采用了模數化的建筑設計,由宿舍、衛生間和樓電梯間三種標準模塊單元組成,其中樓電梯間模塊和衛生間模塊結構布置均勻對稱,各模塊單元如下圖所示。

     

    預制范圍選擇

    教學辦公樓采用了模數化的建筑設計,由普通教室、專業教室、衛生間等標準模塊單元組成; 其中對于不同功能的普通教室進行尺寸歸并,專業教室采用1.5或2倍的擴大軸網進行布置;通過結構布置歸并,大大減少構件種類。 

     

    BIM設計

    項目的全過程BIM應用實現了BIM設計與傳統設計實現初步融合,建立了較為統一的BIM建筑設計標準和方法,更專注于項目精細化管理的深度。對數據的分析、模擬、積累以及總結,能為空間感受、項目管理、成本優化以及進度控制等精細化決策提供了依據,為高品質,低成本,嚴管控,短周期目標提供有力支撐。對設計品質有了大幅度提升,在設計周期已把隱性問題提前暴露,大量解決了各專業之間的協調問題。通過對各個重要區域及空間的比對,使得項目視覺及使用效果大大提高,更可貴的是通過這種方式的運用,結合人的行為習慣,有效抑制項目中可能存在的風險,將BIM設計的隱性價值大大發揮。

    利用BIM三維可視化,模型中建筑,結構,機電,均達到較深的程度,模型細部的表述可以指導施工,結合圖紙有效的表達出設計意圖。在BIM模型中提前模擬,為施工人員在現場施工具有指導意義。通過BIM應用解決了各專業間相互碰撞的問題,減少了二維圖紙可能存在的問題,減少了后期返工或變更的工作量,在施工可建造性、可實施性上,大大節約了對項目的管理、變更、協調和運營的成本,業主方可以更好地把控設計及施工質量,為學校特有固定的招生開學時間保駕護航。

    △一點透視圖

    △透視拆分圖

    △預制柱+預制梁+預制梁

    △預制柱+預制梁+現澆缺口

    △預制柱+預制梁+現澆部分+預制樓板

    △預制柱+預制梁+現澆部分+預制樓板+現澆樓板

    —綠色技術要點

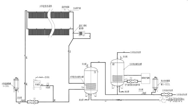
    1、熱水系統

    熱水采用集中供應的形式,采用太陽能熱水系統供應,輔助熱源為空氣源熱泵。系統采用機械循環,閉式系統。熱水供水溫度為60℃,回水溫度為55℃。熱水循環管道采用同程布置方式。屋頂的集熱器應采取可靠的防止集熱器過熱的保護措施。

     

    2、雨水回用系統

    響應上海市推進海綿城市建設的號召,從對各種水資源利用和對場地雨水外排總量控制出發,設計雨水收集回用系統。通過過濾、消毒凈化后達到《城市雜用水水質標準》,用于綠化、道路沖洗、景觀等用水。雨水回用系統的流程如下:屋面雨水→室外雨水管網→棄流井→蓄水池→消毒、過濾裝置→清水池。

    建設單位:上海閔行城市建設投資開發有限公司

    建設地點:上海市閔行區都莊路

    建筑用途:教育

    建設用地:43290㎡

    建筑面積:4.85萬㎡

    最大建筑高度/層數:60m/5-10層

    設計年份:2015-2016年

    工程進展:2017年底竣工

    結構形式:裝配式預制混凝土框架結構

    外裝材料:仿石涂料

    獲獎情況:上海市裝配式建筑示范項目(入圍獎)

                      住建部裝配式科技示范項目

    來源:華建筑

     

    組委會聯系方式 

    項目一組

    盧毅                                        江彩霞

    座機:020-61199942        座機:020-62139617

    手機:137 1143 0398       手機:159 1574 4203

    Q  Q:323201814              Q  Q:3197096891

     

    殷鋒                                        

    座機:020-62139606      

    手機:185 6528 2359    

    Q  Q:1684672007          


    項目二組 

    李健銘                              項國澳

    座機:020-61198891     座機:020-62139624

    手機:158 1708 8364    手機:135 8050 2528

    Q  Q:3544579318        Q  Q:3275574349


    梁建林  

    座機:020-62139604

    手機:155 2139 4660

    Q  Q:516165433

     

    市場部·媒體合作

    郭穗豐                              鄧海蓮

    座機:020-61198886    座機:020-61198851

    手機:134 1817 7414   手機:183 1900 4798

    Q  Q:602619772          Q  Q:2135571196

     


    020-22093641 zlexpo@zlexpo.org 留言咨詢 參展聯絡 參觀聯絡 參展聯絡
     

    首 頁 展會概況 展商服務 觀眾服務 預約參觀 線上參展 新聞資訊 合作媒體 聯系我們 高峰論壇 資料下載 English

    導航
  • 500av导航大全精品